Hazelwood Park
60 Knightsbridge Road
522
Make an Enquiry
The Ultimate Family Home
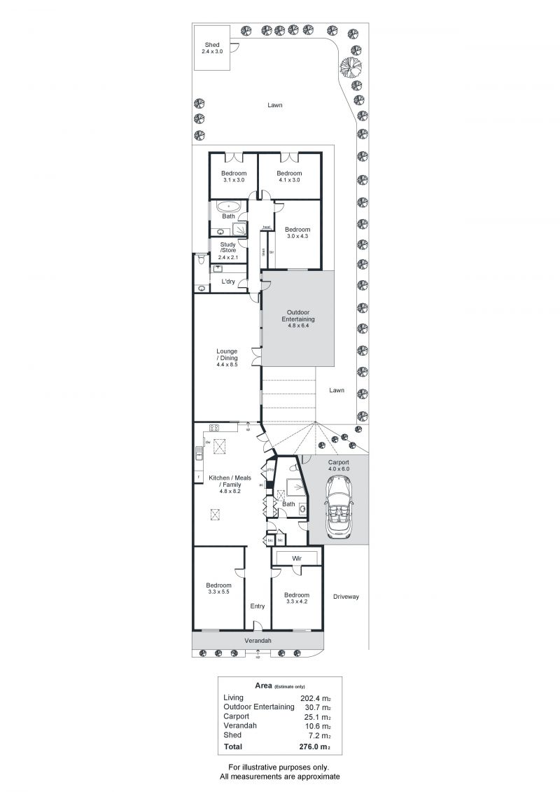
This fully renovated 5 bedroom home is perfect for the family that loves to entertain.
As you enter you are immediately impressed by the feeling of space with the magnificent long hallway and an abundance of natural light.
To the front are two large bedrooms or alternatively two offices for the family that works from home.
The hallway flows into the stunning gourmet kitchen and family room with double doors leading onto the side garden.
Up two steps and you enter into the formal dining and sitting room with French doors leading to the undercover entertaining area and lawned garden.
To the rear are a further 3 double bedrooms, (master with built-in robes) plus a study/store room. All the bedrooms have wonderful garden views.
In addition there are two large, modern bathrooms plus an excellent laundry and separate 2nd w.c.
The backyard is a children's haven with a built-in cubby house and slide plus a large lawn area to kick a ball.
Other features include a carport, garden shed, air-conditioning and gas heating.
Zoned for Linden Park Primary School and Burnside Primary School and easy walking distance to George Bolton Swimming Centre Burnside and Hazelwood Park Playground.
All in all a magnificent home in a wonderful location, and so close to shops, transport, great schools and Hazelwood Park!
Council rates: $1,669.40 pa
Water rates: $220.48 pq
ES Levy: $183.75 pa
Year Built:Â 1968
All information provided (including but not limited to the property's land size, floor plan and floor size, building age and general property description) has been obtained from sources deemed reliable, however, we cannot guarantee the information is accurate and we accept no liability for any errors or oversights. Interested parties should make their own enquiries and obtain their own legal advice. Should this property be scheduled for auction, the Vendor's Statement can be inspected at our office for 3 consecutive business days prior to the auction and at the auction for 30 minutes before it starts.
As you enter you are immediately impressed by the feeling of space with the magnificent long hallway and an abundance of natural light.
To the front are two large bedrooms or alternatively two offices for the family that works from home.
The hallway flows into the stunning gourmet kitchen and family room with double doors leading onto the side garden.
Up two steps and you enter into the formal dining and sitting room with French doors leading to the undercover entertaining area and lawned garden.
To the rear are a further 3 double bedrooms, (master with built-in robes) plus a study/store room. All the bedrooms have wonderful garden views.
In addition there are two large, modern bathrooms plus an excellent laundry and separate 2nd w.c.
The backyard is a children's haven with a built-in cubby house and slide plus a large lawn area to kick a ball.
Other features include a carport, garden shed, air-conditioning and gas heating.
Zoned for Linden Park Primary School and Burnside Primary School and easy walking distance to George Bolton Swimming Centre Burnside and Hazelwood Park Playground.
All in all a magnificent home in a wonderful location, and so close to shops, transport, great schools and Hazelwood Park!
Council rates: $1,669.40 pa
Water rates: $220.48 pq
ES Levy: $183.75 pa
Year Built:Â 1968
All information provided (including but not limited to the property's land size, floor plan and floor size, building age and general property description) has been obtained from sources deemed reliable, however, we cannot guarantee the information is accurate and we accept no liability for any errors or oversights. Interested parties should make their own enquiries and obtain their own legal advice. Should this property be scheduled for auction, the Vendor's Statement can be inspected at our office for 3 consecutive business days prior to the auction and at the auction for 30 minutes before it starts.
Sold Date : 2020-10-13