Unley
25 Miller Street
322
Make an Enquiry
Modern and executive residence situated on a beautiful tree-lined street within walking distance to Unley and King William Roads.
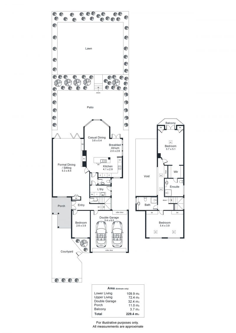
Set on a deep garden allotment of 583 sqm approx. (11.58m x 50.37m)
Lower level comprising of spacious living and dining with combustion fireplace, solid Tasmanian oak flooring, vaulted cathedral ceilings, French doors leading out to the alfresco entertaining area and sunken private garden and lawns plus contemporary open plan kitchen, informal dining and breakfast atrium plus third bedroom or study/office.
Master bedroom suite upstairs with Juliet balcony, walk-in robe and ensuite plus second bedroom and main modern sparkling bathroom.
Other features include double garaging plus two car spaces in front, reverse cycle air conditioner, ducted vacuum, dishwasher, built-in microwave, intercom, alarm, floor safe and auto reticulation.
A high quality property sitting on a blue chip allotment so close to all the cosmopolitan attractions, CBD and parklands.
Council rates: $2,767.65 pa
Water rates: $294.73 pq
ES Levy: $248.85 pa
Year Built:Â 1990
All information provided (including but not limited to the property's land size, floor plan and floor size, building age and general property description) has been obtained from sources deemed reliable, however, we cannot guarantee the information is accurate and we accept no liability for any errors or oversights. Interested parties should make their own enquiries and obtain their own legal advice. Should this property be scheduled for auction, the Vendor's Statement can be inspected at our office for 3 consecutive business days prior to the auction and at the auction for 30 minutes before it starts.
Lower level comprising of spacious living and dining with combustion fireplace, solid Tasmanian oak flooring, vaulted cathedral ceilings, French doors leading out to the alfresco entertaining area and sunken private garden and lawns plus contemporary open plan kitchen, informal dining and breakfast atrium plus third bedroom or study/office.
Master bedroom suite upstairs with Juliet balcony, walk-in robe and ensuite plus second bedroom and main modern sparkling bathroom.
Other features include double garaging plus two car spaces in front, reverse cycle air conditioner, ducted vacuum, dishwasher, built-in microwave, intercom, alarm, floor safe and auto reticulation.
A high quality property sitting on a blue chip allotment so close to all the cosmopolitan attractions, CBD and parklands.
Council rates: $2,767.65 pa
Water rates: $294.73 pq
ES Levy: $248.85 pa
Year Built:Â 1990
All information provided (including but not limited to the property's land size, floor plan and floor size, building age and general property description) has been obtained from sources deemed reliable, however, we cannot guarantee the information is accurate and we accept no liability for any errors or oversights. Interested parties should make their own enquiries and obtain their own legal advice. Should this property be scheduled for auction, the Vendor's Statement can be inspected at our office for 3 consecutive business days prior to the auction and at the auction for 30 minutes before it starts.
Sold Date : 2020-08-25