Parkside
10A Regent Street
212
Make an Enquiry
An absolute gem in sensational location.
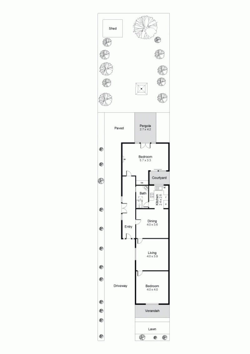
Attached bluestone cottage circa 1890 with brick extension and deep back garden. With its wide frontage and generous driveway access the residence is perfect for further upgrade and renovation. Currently tenanted until the 30th of March. Just minutes to the parklands, Hutt St and the CBD.
Sold Date : 2017-03-21